Objekt-Nr. 6444

Luftkurort Werdum: Solides und flexibles Wohnhaus (2 WE möglich) mit Dachterrasse und Garage

Luftkurort Werdum: Solides und flexibles Wohnhaus (2 WE möglich) mit Dachterrasse und Garage

Objekt

Einfamilienhaus

Ort

26427 Werdum

Kaufpreis:

269.000,00 €

Maklerprovision:

3,57 % inkl. 19 % MwSt.
Der Makler ist gem. §656c BGB als Doppelmakler tätig und erhält von dem Käufer und dem Verkäufer jeweils ein Erfolgshonorar in Höhe des o.g. Provisionsanteils vom Gesamtverkaufspreis inkl. der gültigen Mehrwertsteuer.

Verfügbarkeit:

nach Vereinbarung

Grundstück:

820,00 m²

Wohnfläche:

170,00 m²

Nutzfläche:

33,00 m²

Baujahr:

1975

Energieausweis:

Typ: BEDARF
gültig bis: 27.03.2035

Energieeffizienzklasse: F
Kennwert: 187,20 kWh/(m²*a)
Energieträger/Baujahr: 2024

Anz. der Zimmer:

8

Küche:

EBK

Boden:

Teppich

Heizung:

Zentralheizung

Befeuerung:

Gas

Bildergalerie

Objektbeschreibung

Verwirklichen Sie Ihren Traum mit einem neuen Eigenheim an der Nordseeküste.
Im idyllischen Luftkurort Werdum, zwischen der "Bärenstadt" Esens und dem Nordseeheilbad Neuharlingersiel gelegen, bieten wir Ihnen in einer ruhigen Lage diese geräumige und solide Immobilie aus dem Jahre 1975 zum Kauf an.
Das Eigentumsgrundstück ist ca. 820 qm groß.

Der Grundriss mit insgesamt 170 qm Wohnfläche bietet im Erdgeschoss auf 95 qm Wohnfläche ein "ebenerdiges Wohnen". Geräumige Zimmer, ein großes Wohn- und Esszimmer mit Ausgang auf eine der beiden Terrassen sowie ein modernisiertes Badezimmer bestechen hier auf dieser Ebene.

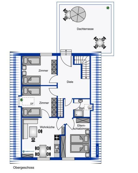
Das Dachgeschoss (ca. 75 qm Wohnfläche) enthält eine sehr schöne und große Dachterrasse sowie eine Vielzahl an weiteren Räumlichkeiten, so dass bei Bedarf problemlos eine zweite Wohneinheit vorhanden und genehmigungsfähig wäre. Die erforderlichen Küchenanschlüsse wären bereits vorhanden.
Der ausgebaute Spitzboden (mit WC) dient zu weiteren Abstellzwecken.

Das gesamte Raumprogramm entnehmen Sie den beigefügten Grundriss-Skizzen.
Beheizt wird das Haus über eine Gas-Brennwerttherme, welche erst in 2024 neu installiert wurde.
Die 2-fach isolierverglasten Kunststofffenster wurden im Jahre 2006 ausgetauscht und sind überwiegend mit (elektr.) Jalousien versehen.

Der Garten im Außenbereich ist pflegeleicht angelegt, die Auffahrt recht großzügig gehalten. Weiterhin ist neben den zwei genannten Terrassen eine massive Garage (mit zusätzlichem kleinen Werkstatt-/Heizungsraum) mit insgesamt 33 qm Nutzfläche direkt am Haupthaus vorhanden.

Die Immobilie kann zeitnah übernommen werden, Mietverhältnisse bestehen nicht. Ob zur Eigennutzung, zum Mehrgenerationenwohnen oder rein als Kapitalanlage – diese Immobilie ist in vielerlei Hinsicht interessant.

Diesbezüglich und für weitere Informationen, beispielsweise zu eventuell noch zu tätigenden Modernisierungsmaßnahmen, steht Ihnen unser Makler, Herr Dirk Blech, gerne zur Verfügung.

Ausstattung

Erdgeschoss:
Diele, Flur, Küche, Wohnzimmer, Esszimmer, Schlafen, Bad, Abstellraum, Terasse, Garage mit Werkstatt und Abstellraum

Dachgeschoss:
Diele, 3 Schlafzimmer, Wohnküche, Duschbad

Spitzboden:
Ausgebaut, Abstellfläche

Lage

Im beliebten und idyllischen Luftkurort Werdum, sowie in der unmittelbaren Umgebung, gibt viele Möglichkeiten auf Erholung und um seine Freizeit zu verbringen: Sportvereine, eine Menge Veranstaltungen, Kurmitteleinrichtungen, Gästeboßeln und Fahrradtouren mit Grillen, Planwagenfahrten, Gastronomie, Kindergarten, Grundschule, Bäckerei, Küstenbrauerei und Kaffeerösterei und vieles mehr. Besonders beliebt ist der zentrale Haustierpark, in dem Kinder und Erwachsene hautnah viele seltene Haustierarten kennenlernen und auch streicheln dürfen. Die Gegend ist für ausgedehnte Spaziergänge, Radtouren und Entdeckungsreisen in die einzigartige Natur Ostfrieslands hervorragend geeignet. So erleben Sie Ihren neuen Heimat- oder Urlaubsort an der Nordsee aktiv und entspannt und profitieren optimal vom Reizklima der Nordsee.

Werdum liegt (fast) direkt hinterm Deich! Der Küstenort Neuharlingersiel liegt etwa 3 km und die "Bärenstadt" Esens etwa 7 km entfernt. In Esens finden Sie beispielsweise alle weiteren Einrichtungen des täglichen Bedarfs, wie Ärzte und Apotheken, weitere Schulen und Kindergärten, einen Bahnhof und zahlreiche Einkaufsmöglichkeiten und Gastronomiebetriebe und vieles mehr.

Ihr Ansprechpartner für dieses Objekt

Dirk Blech

Dirk Blech
Büro Esens
Norderstr. 1
26427 Esens
Tel.: +49 4971 5243
info@maklerkreisel.de

Online-Anfrage für dieses Objekt

Mit *-gekennzeichnete Felder müssen ausgefüllt werden.

Anrede:


Vorname*:


Nachname*:


Straße/Nr.*:


PLZ/Ort:*


Telefon:


Mobil:


Mail*:


Bevorzugte Kontaktart:




Ihre Nachricht:


Datenschutz*:



Büro Esens

Norder Straße 1
Tel. +49 (0) 4971 / 9499-0
Fax +49 (0) 4971 / 9499-19

Anfahrt & Öffnungszeiten

Büro Friedeburg

Friedeburger Hauptstraße 37
Tel .+49 (0) 4465 / 392
Fax +49 (0) 4465 / 1671

Anfahrt & Öffnungszeiten

Büro Carolinensiel

Bahnhofstr. 32
Tel. +49 (0) 4464 / 8688250

Anfahrt & Öffnungszeiten

Immobilien-Partner Figge
GmbH & Co. KG

Geschäftsführer:
Thorsten Figge, Uwe Lübben, Dirk Blech, Timo Schuirmann
Firmensitz:
Norder Straße 1 - 26427 Esens

Lübben & Figge
Versicherungsmakler GmbH

Geschäftsführer:
Thorsten Figge, Uwe Lübben
Firmensitz:
Norder Straße 1 - 26427 Esens

Rechtliches

© maklerkreisel

ImpressumDatenschutzWiderrufsbelehrung (Immobilien)

Mitgliedschaften - Kooperationen - Partnerschaften